55 Cassia Lane, Woolgoolga NSW 2456

SOLD

Just Breathtaking....

Commanding a high position on Woolgoolga Headland and overlooking the Coffs Coast Regional Park, this is an extraordinary opportunity to live the ultimate coastal dream.

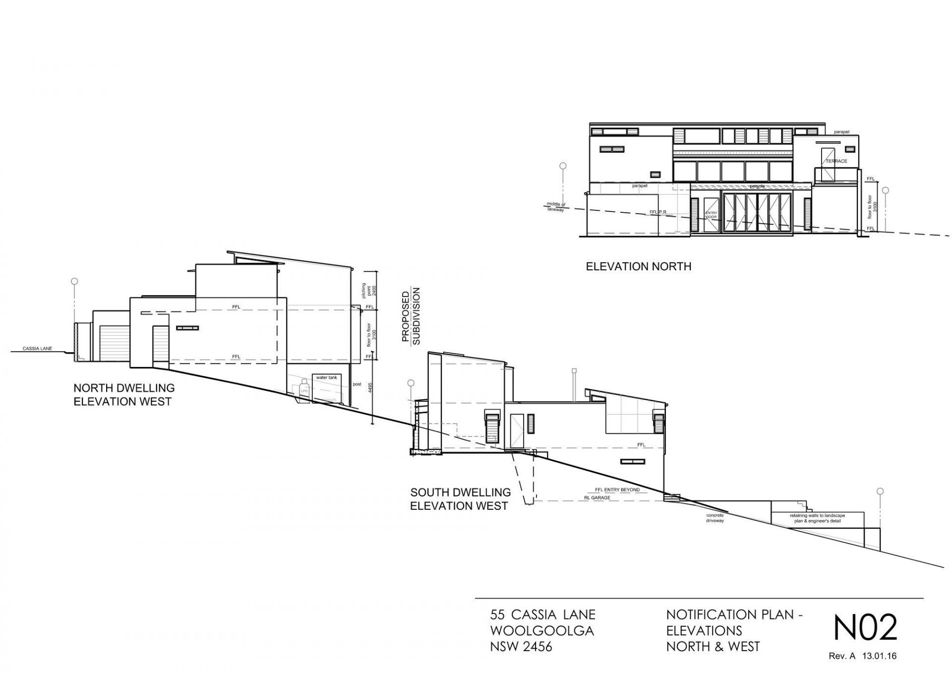
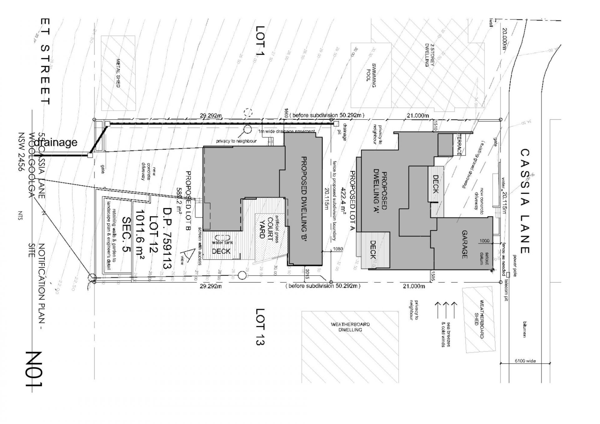
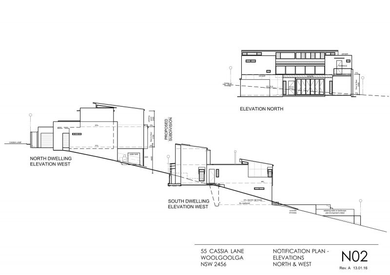
With architect designed house plans already DA approved and available for your use, you could soon be waking up to spectacular beach, island and ocean views and watching magnificent sunsets over The Great Dividing Range. The home has been impressively designed for maximum appeal. Spacious and light-filled with lofty double height ceilings at its entrance, it is set to be a standout home on the headland.

Highly sought after Woolgoolga Headland, with its winding coastal paths, is enveloped by the Solitary Islands Marine Park and is famous for whale watching. Eastern Grey kangaroos are often grazing and milling about. Vacant land on the headland is rare.

Woolgoolga is a pretty, beachside town with a village feel. This premier headland position combines with absolute convenience. A few minutes' walk from your home will have you seated at one of the many cafes and restaurants or browsing the specialty shops and boutiques. A short stroll and you'll be sinking your feet into the sand of the family-friendly Woolgoolga Beach or losing yourself on the pristine wilderness of Back Beach.

Coffs Harbour, with its iconic jetty and marina precinct, is just a 20 minute drive. The Great Dividing Range meets the ocean at Coffs Harbour providing a majestic backdrop and there are also many other scenic destinations that showcase the natural beauty of the Coffs Coast.

The R3 Medium Density zoning allows for other development opportunities (STCA).

The adjoining block at 55 Market Street is also for sale. A building height covenant applies to 55 Market Street. Please contact the agent for details.

Land size: 425.5 sqm
Council rates: $3,466.26

SOLD

$1,300,000

Land size: 425.5 m2

Email Agent

  • Anti-Spam Image
  • Submit

Nicole Cardow
Nicole Cardow
Principal | Licensee
Woolgoolga

Email Agent

Properties in Woolgoolga

For Lease
$2400 monthly + outgoings
Commercial space for lease

Woolgoolga

2/66 River Street

  • 1

  • 1

For Lease
$600 per week
2 Bedroom - 1 Bathroom - Modern Living

Woolgoolga

44a Newmans Road

  • 2

  • 1

For Sale
$1,165,000
Impressive NEW 5 bedroom home, with summer lounge and luxury upgrade package

Woolgoolga

29 Reflection Crescent

  • 5

  • 3

  • 2

For Sale
$949,900
Affordable NEW turnkey family home in a sought-after masterplanned community - Start building in 2026!

Woolgoolga

32 Reflection Crescent

  • 4

  • 2

  • 2

For Sale
From $915,000 - $1,375,000
Stylish Coastal Living at 4 Beach Street Woolgoolga

Woolgoolga

1-15/4 Beach Street

  • 2

  • 2

  • 1

For Sale
Price Guide $495,000
Coastal Convenience Meets Relaxed Living

Woolgoolga

6/20A Wharf Street

  • 2

  • 1

  • 1

View More

SOLD
$540,000
SOLD BY MEL SCHOTHORST 0438 484 828
SOLD
SOLD
Fri 19th December

Woolgoolga

35/Lot 1 Newmans Road

SOLD
$530,000
SOLD BY MEL SCHOTHORST 0438 484 828
SOLD
SOLD
Fri 19th December

Woolgoolga

27/Lot 1 Newmans Road

SOLD
$575,000
SOLD BY MEL SCHOTHORST 0438 484 828
SOLD
SOLD
Thu 11th December

Woolgoolga

40/Lot 1 Newmans Road

SOLD
$555,000
Build Your Coastal Dream - Large, Level Homesite Close to all Amenity
SOLD
SOLD
Thu 4th December

Woolgoolga

46/Lot 1 Newmans Road

SOLD
$545,000
Level, Coastal Homesite
SOLD
SOLD
Thu 4th December

Woolgoolga

23/Lot 1 Newmans Road

SOLD
$545,000
SOLD BY MEL SCHOTHORST 0438 484 828
SOLD
SOLD
Thu 20th November

Woolgoolga

18/Lot 1 Newmans Road

View More

Sign up here to receive Property Alerts

Sign up to receive property results in your inbox on a Friday afternoon.

Our Office

$
$
Note: fields marked with asterisk (*) are required to submit this form.

Contact Us

[gravityform id="3" title="false" description="false" ajax="true"]